工場 富士市蓼原
農地が広がる開放的な立地
工業地域内。住宅が近接しておらず騒音・振動等の懸念が少ない
建物は平成27年築
太陽光発電設備完備(設置時期:令和5年頃)
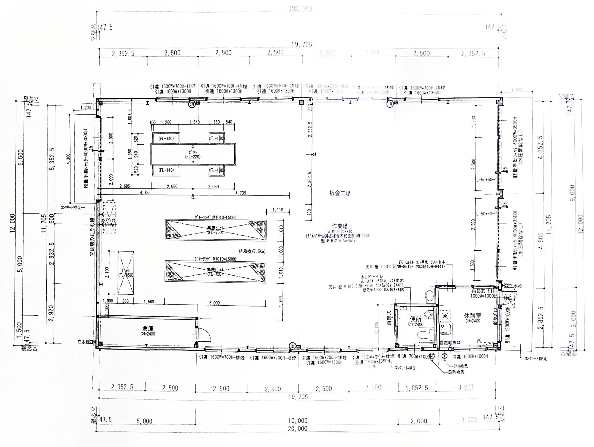
自動車板金工場
塗装ブース・ピット等完備
敷地広々約278坪。駐車多数台可
自家水(井戸水)を利用。水道代の節約や災害時にも便利。
- #自動車板金工場
- #太陽光
- #駐車スペース
- #井戸
- #築浅
- #工業地域
- 価格
- 6,000万円
- 種別
- 工場
-
- 所在地
- 静岡県富士市蓼原
- 交通
- 岳南鉄道「ジヤトコ前駅」約2000m
ローンシミュレーション
※頭金・ボーナス無しの場合です。
毎月の返済額: 0 円
総返済額: 0 円
※お支払額は目安となりますので、実際の金額とは異なる場合がございます。
※固定・変動は考慮していません。
物件詳細
| 土地面積 | 920.17m²(278.35坪) | ||||
|---|---|---|---|---|---|
| 地目 | 宅地 | ||||
| 建物面積 |
238.78㎡(72.23坪) |
||||
| 建物構造 | 鉄骨造合金メッキ鋼板ぶき平家建 | ||||
| 間取 |
工場 |
||||
| 築年月 |
平成27年11月 |
||||
| 都市計画 | 市街化区域 | 用途地域 |
工業地域 |
||
| 建ぺい率 | 60% | 容積率 | 200% | ||
| その他 |
特別用途地区:第二種特定規模集客施設制限地区 第二種高度地区(31m以下) 防災マップ(潤井川洪水浸水想定区域・内水浸水想定区域) 富士市富士山火山防災マップ |
||||
| 接道 |
南東側 幅員約6.1m(台帳上) |
||||
| 現況 | 空 | ||||
| 引渡 | 相談 | ||||
| 取引態様 | 仲介 | ||||
| 計測方式 | |||||
| バルコニー | 向き | ||||
| 建物階数 | 地上1階 | 部屋階数 | |||
| 建物構造 | |||||
| 駐車場 | 取引態様 | 仲介 | |||
| 地目 | 宅地 | ||||
| 都市計画 | 市街化区域 | 地勢 | |||
| 周辺環境 | |||||
| 物件番号 | |||||
Loading...
※ 対象物件の正確な位置を保証するものではありません。
※ 掲載内容・図面等と現況に相違がある場合、現況優先とします。
お気軽にご相談・お問い合わせください
お電話でのご相談・お問い合わせ
TEL:055-968-6336
営業時間:08:30~17:30
定休日:日・祝
WEBからのご相談・お問い合わせ










